Møllevænget & Storgaarden har nået afslutningen på 1. etape af helhedsplanen på Anemonevej i Randers. Boligorganisationen vil derfor gerne invitere dig til et åbent hus, hvor du kan komme se nogle af de færdigrenoverede boliger, der blandt andet har fået nyt køkken og bad.
Fredag d. 6. oktober fra kl. 13.00 til 16.00 kan alle, der har lyst, komme forbi og se nogle at de nyrenoverede boliger på Anemonevej 18, 20 og 22.
Arrangementet er for alle, der er interesserede, uanset om man er beboer, står på venteliste til boligerne eller om man bare synes, det kunne være interessant at se, hvordan boligerne ser ud efter renovering.
Der bliver serveret gratis kage og sodavand indtil der ikke er mere, så kom i god tid.
Arrangementet kræver ingen tilmelding.
Læs mere om renoveringsprojektet på Anemonevej i Randers
Åbent hus afholdes af Møllevænget & Storgaarden og RandersBolig.

Eksempel på nyt badeværelse på Anemonevej (Foto: RandersBolig)

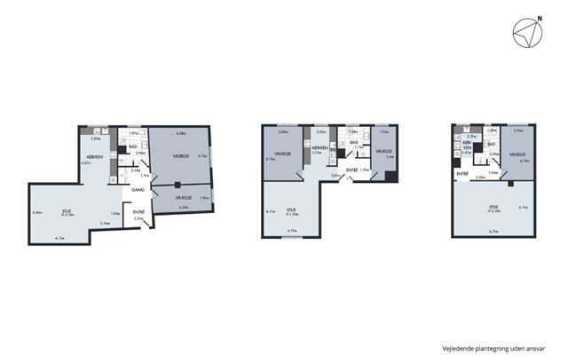
Tre eksempler på nyt rumfordeling i boligerne på Anemonevej (Foto: RandersBolig)